- Описание
- Характеристики
- Документация
Расшифровка обозначения
Электронасос погружной песковый серии «Иртыш» типа ППс 40/200.195-2,2/4-106:
П - погружной электродвигатель без принудительного охлаждения;
П - гидравлическая часть насоса предназначена для перекачивания песчаных и других абразивных гидросмесей;
с - в насосе установлено вихревое рабочее колесо;
40 - номинальный диаметр напорного патрубка, мм;
200 - номинальный диаметр рабочего колеса, мм;
195 - фактический диаметр рабочего колеса, мм;
- без обозначения, стандартная длина кабеля 10 метров;
2,2 - номинальная мощность электродвигателя, кВт;
4 - число полюсов электродвигателя;
1 - монтаж на опускном устройстве вертикальный;
0 - без шкафа защиты и управления;
6 - влаго-термозащита;
Условия гарантии и шкафы управления
На насос без шкафа управления предоставляется гарантия 12 месяцев.
Гарантийный срок 24 месяца предоставляется на насосы Иртыш, укомплектованные шкафами управления Иртыш.
Шкаф управления Иртыш контролирует работу насоса по датчикам, установленным в основных узлах насоса Иртыш, и обеспечивает необходимую защиту электрической части, что гарантирует длительную и безаварийную работу насоса.
Для работы в автоматическом режиме насос или группу насосов мощностью более 3 кВт необходимо подключать через плавный пуск или частотный регулятор.
Для эксплуатации насоса в автоматическом режиме рекомендуем взамен данного насоса применить однонасосный комплект (насос и шкаф управления) Иртыш ППс 40/200.195-2,2/4-136.
Для эксплуатации насоса в ручном режиме рекомендуем взамен данного насоса применить однонасосный комплект (насос и шкаф управления) Иртыш ППс 40/200.195-2,2/4-116.
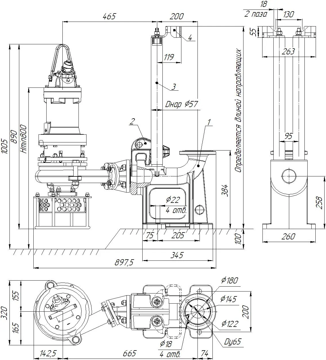
Габаритные размеры

Обозначения на чертеже
1. Патрубок погружной;
2. Насос с захватом;
3. Направляющие;
4. Кронштейн верхний.
Параметры рабочей точки
| Производительность, Q | 10 м³/ч |
| Напор, Н | 10 м |
| Потребляемая мощность в рабочей точке, Nпотр | 1,8 кВт |
| КПД агрегата, η | 11 % |
Характеристики насоса
| Вариант монтажа насоса | монтаж на опускном устройстве вертикальный |
| Условный диаметр напорного патрубка | 40 Ду, мм |
| Тип рабочего колеса | вихревое |
| Фактический диаметр рабочего колеса | 195 мм |
| Рекомендуемая глубина погружения | не более 10 м |
| Максимальный размер перекачиваемых частиц | 8 мм |
| Тип уплотнения вала | торцовое сдвоенное |
| Материал вращающейся части и неподвижного кольца торцового уплотнения | карбид кремния - карбид кремния; карбид кремния - карбид керамики; |
| Материал рабочего колеса | сталь гуммированная резиной |
| Материал корпуса спирального | износостойкий чугун ИЧХ28Н2 |
| Материал корпуса электродвигателя | чугун СЧ 20 |
Спецификация быстроизнашивающихся деталей
| Наименование | Марка материала | Масса, кг |
| Колесо рабочее | Резина | 2,2 |
| Диск футеровочный | Резина | 0,7 |
| Корпус спиральный | Износостойкий чугун ИЧХ28Н2 |
18 |
Параметры электродвигателя
| Номинальная мощность | 2,2 кВт |
| Напряжение | 380 В |
| Частота тока | 50 Гц |
| Номинальный ток | 5,78 А |
| Число полюсов | 4 |
| Частота вращения | 1400 об/мин |
| Сos φ | 0,8 |
| КПД эл. двигателя | 78 |
| Соединение обмоток по схеме | звезда |
| Класс нагревостойкости | F |
| Способ охлаждения электродвигателя | погружной электродвигатель без принудительного охлаждения |
| Способ защиты электродвигателя | влаго-термозащита |
| Степень защиты электродвигателя | IP 68 |
| Длина встроенного электрического кабеля | 10 м |
| Количество жил кабеля | 7 шт. |
| Сечение жил | 1,5 мм² |
| Изоляция кабеля | маслостойкая |
Гарантийная наработка быстроизнашивающихся деталей
| Наименование перекачиваемой среды | Примерная наработка, ч |
| Глинисто – песчаные породы | 2000 |
| Крупнозернистые пески | 1800 |
| Песчано-гравийные породы | 1500 |
| Хвосты руд цветных металлов (кварцевые, пиритные, цинковые) | 1500 |
| Хвосты руд черных металлов и зольные пульпы | 1300 |
| Гравий и дробленые породы, золошлаковые и шлаковые пульпы | 960 |

Ресурсы
| Средняя наработка на отказ | не менее 7000 часов |
| Средний ресурс до главного техобслуживания | не менее 20000 часов |
| Средний срок службы | не менее 20 лет |
| Масса насосного агрегата без шкафа управления | 105 кг |
Перечень необходимых защит
Для обеспечения длительной безаварийной работы насоса «Иртыш» шкаф управления должен обеспечивать:
- защиту по встроенным датчикам в насосе (влаго-термозащита);
- тепловую защиту двигателя;
- контроль порядка чередования фаз;
- контроль повышенного/пониженного напряжения;
- контроль перегрузки по току и перекоса фаз;
- контроль наличия фаз питания;
- защиту от «сухого» хода.
Для работы мощностью свыше 3кВт рекомендуется плавный пуск. Рекомендуется приобретение шкафов управления серии «Иртыш».







