- Описание
- Характеристики
- Видео
- Документация
Условное обозначение
|
Иртыш |
ШУ3 |
1 |
2,2 |
Ч |
0 |
3 |
1 |
|
1 |
2 |
3 |
4 |
5 |
6 |
7 |
8 |
1 – Наименование серии шкафа управления;
2 – Назначение шкафа управления:
«ШУ3» – шкаф управления вентиляционными агрегатами.
3 – Количество управляемых электродвигателей, шт.;
4 – Мощность электродвигателя, кВт;
5 – Тип запуска электродвигателя:
«Ч» – преобразователь частоты;
6 – Тип защиты электродвигателя:
«0» – без защиты;
7 – Питающее напряжение
«3» – 380В;
8 – Количество вводов.
Состав изделия
Шкаф управления состоит из:
1. корпуса, монтажной платы, крепёжных деталей;
2. частотного преобразователя;
3. автоматических выключателей;
4. магнитных пускателей;
5. светосигнальной арматуры;
6. клеммных колодок;
7. системы проводов;
Сертификат соответствия
№ ТС RU C-RU.AУ05.B.06848
Технические характеристики
|
№ |
Наименование |
Значение |
|
1 |
Род тока |
переменный, 50Гц |
|
2 |
Номинальное рабочее напряжение, В |
380 |
|
3 |
Номинальное напряжение изоляции, В |
660 |
|
4 |
Номинальное напряжение цепей управления, В |
220 |
|
5 |
Допустимое отклонение напряжения питания от номинала |
+10%…-15% |
|
6 |
Номинальный ток каждой цепи, А |
6,3 |
|
7 |
Номинальная мощность подключаемого электродвигателя, кВт |
2,2 |
|
8 |
Предельный отключаемый ток, кА |
50 |
|
9 |
Предельный коэффициент мощности (cosφ) |
0,89 |
|
10 |
Окружающая температура при работе |
(-5…+40) °С |
|
11 |
Окружающая температура при хранении |
(-25…+55) °С |
|
12 |
Относительная влажность воздуха |
80% без конденсата |
|
13 |
Максимальная высота над уровнем моря |
1000м |
|
14 |
Габариты шкафа управления |
см. Приложение 4 |
|
15 |
Степень защиты |
IP31 |
|
16 |
Меры защиты обслуживающего персонала |
Защита от прямого |
|
17 |
Степень загрязнения |
по соглашению |
|
18 |
Вид системы заземления |
TN-S |
|
19 |
Вид внутреннего разделения |
1 |
|
20 |
Типы электрических соединений функциональных блоков |
FFF |
|
21 |
Условия окружающей среды |
В |
|
22 |
Максимальная нагрузочная способность выходных реле (сигнал ТС) |
220В, 2А |
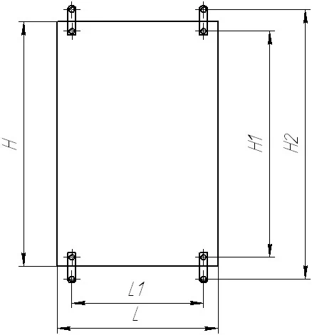
Общий вид шкафа управления


Габаритные размеры
|
Наименование |
H, мм |
L, мм |
B, мм |
H1, мм |
H2, мм |
L1, мм |
|
ШУ3-1.2,2.Ч.0-31 |
650 |
500 |
220 |
600 |
685 |
420 |








