- Описание
- Характеристики
- Видео
НАЗНАЧЕНИЕ ИЗДЕЛИЯ
Дизельные насосные агрегаты типа ДНА (агрегаты) предназначены для перекачивания бытовых и промышленных загрязнённых жидкостей (фекальных, сточных вод, промышленных стоков), с водородным показателем рН=6,0…9,0 плотностью до 1100 кг/м³, температурой до 40°С, с содержанием различных неабразивных взвешенных частиц максимальным размером до 28мм, концентрацией до 2% по массе, абразивных взвешенных частиц не более 1% по объёму, размером до 5 мм и микротвердостью не более 9000 МПа.
Применяются при строительстве промышленных, жилых сооружений с целью осушения котлованов, траншей, теплотрасс, для откачки фекальных жидкостей, сточных вод, промышленных отходов из колодцев и выгребных ям.
Агрегаты относятся к изделиям вида 1 (восстанавливаемые) по ГОСТ 27.003-2016.
Условное обозначение дизельного насосного агрегата при заказе, переписке и в технической документации должно быть:
| Иртыш | ДНА - | 100 | / | 57. | НС2. | 4100. | 40 | / | 2350. | К. | 11 | . | 6 |
| 1 | 2 | 3 | / | 4 | 5 | 6 | 7 | / | 8 | 9 | 10 | 11 | 12 |
- 1 – Серия – Иртыш;
- 2 – Тип агрегата: ДНА – дизельный насосный агрегат;
- 3 – Номинальный расход агрегата - м3/ч;
- 4 – Номинальный напор агрегата - м;
- 5 – Тип установленного насоса:
- К – насос для чистой воды горизонтальный, консольный с опорой на корпусе;
- СМ – насос для сточных вод;
- Д – насос двустороннего входа;
- ЦНС – насос многосекционный;
- НС – насос самовсасывающий (1, 2, 3 и т.д. – одно-, двух-, трёх- и т.д. канальное закрытое рабочее колесо;
- 6 – Марка установленного двигателя;
- 7 – Полезная мощность двигателя;
- 8 – Номинальная частота вращения вала двигателя;
- 9 – Вариант исполнения:
- Н – навес;
- К – капот;
- К1 – капот на двигатель;
- Б – блок бокс;
- Б - 01 – блок бокс антивандальный;
- без обозначения – стандартное исполнение.
- 10 – Вид заполнения насоса и всасывающей линии:
- Г – газоструйный аппарат;
- Р – ручной насос;
- М – мотопомпа;
- В – вакуумный эл. насос;
- без обозначения – стандартное исполнение.
- 11 – Запорная арматура на нагнетательном патрубке:
- 1 – обратный клапан, ручной затвор;
- 11 – ручной затвор;
- без обозначения – стандартное исполнение.
- 12 – Всасывающая линия в сборе:
- 4 – обратный клапан, фильтр, поплавок, рукав 4 м;
- 6 – обратный клапан, фильтр, поплавок, рукав 6 м;
- 10 – обратный клапан, фильтр, поплавок, рукав 10 м;
- без обозначения – стандартное исполнение.
- 13 – Степень мобильности ДНА:
- П – прицеп;
- П - 01 – прицеп с тентом;
- С – сани волокуши;
- без обозначения – стандартное исполнение на раме.
- 14 – Исполнение пульта управления:
- А – автоматический запуск, останов;
- без обозначения – ручной запуск, останов.
ТЕХНИЧЕСКИЕ ХАРАКТЕРИСТИКИ
Основные параметры дизельного насосного агрегата
| Наименование | Марка |
|---|---|
| Дизельный насосный агрегат | ДНА 100/57.НС2.4100.40/2350.К.11.6 |
| Марка двигателя | 4100 |
| Марка насоса | НС2 100/279.279 |
| Подача, м3/ч (м3/с) | 100 (0,028) |
| Напор, м | 57 |
| Частота вращения вала двигателя, с-1 (об/мин) | 39.2 (2350) |
| Масса агрегата, кг, не более | 1500 |
| Габаритные размеры агрегата, мм | 2200х1100х2000 |
| Допускаемый кавитационный запас, не более, м | 6,0 |
| Ёмкость топливного бака, л | 80 |
СОСТАВ ИЗДЕЛИЯ
В комплект поставки дизельного насосного агрегата входит:
- Дизельный насосный агрегат;
- Рукав (по дополнительному договору);
- Фильтр (по дополнительному договору);
- Руководство по эксплуатации (паспорт) на насос;
- Руководство по эксплуатации (паспорт) на дизельный насосный агрегат;
- Руководство по эксплуатации (паспорт) на привод дизельный;
- Руководство по эксплуатации (паспорт) на предпусковой подогреватель;
- Запасные части к двигателю.*
* Условия поставки двигателя поставщиком
Примечание - Комплект поставки может корректироваться по требованию заказчика.
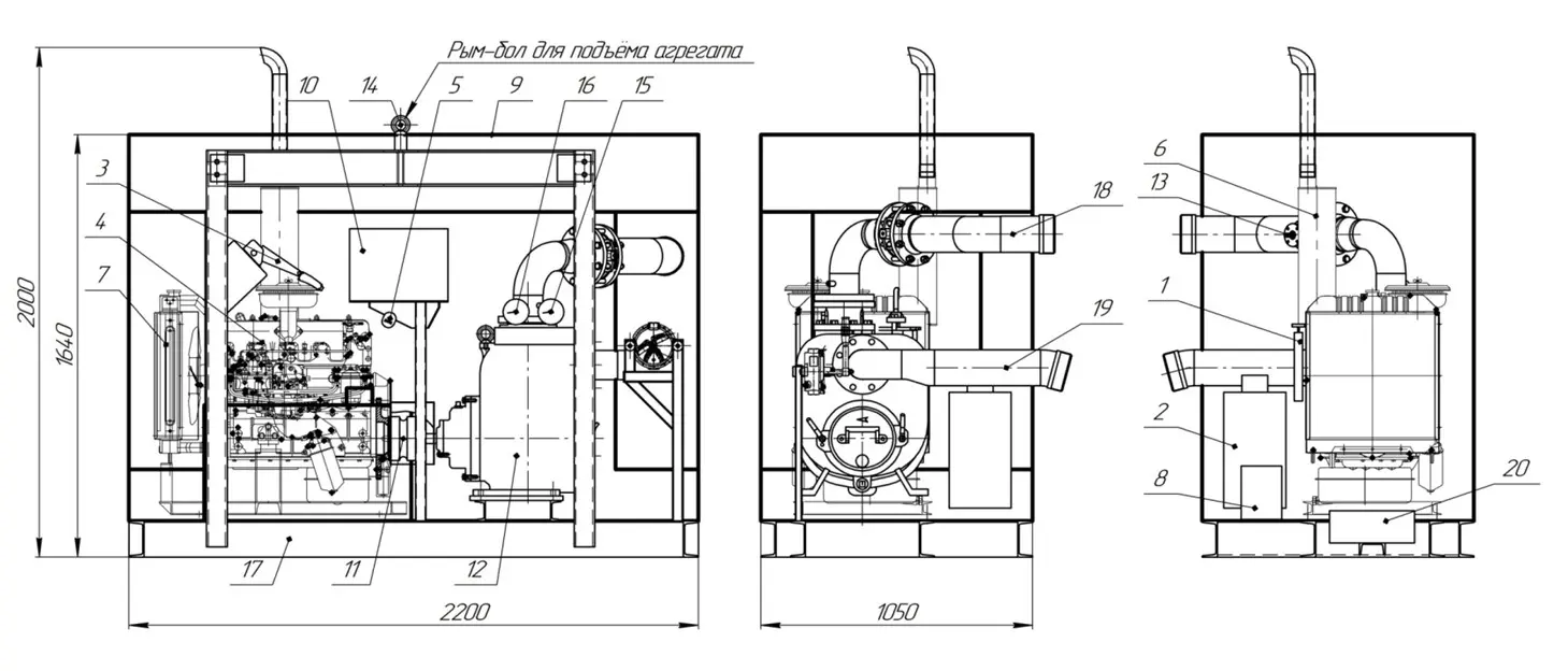
Схема строповки и габаритно-присоединительный чертеж агрегата ДНА 100/57.НС2.4100.40/2350.K.11.6

1. Насос для откачки масла; 2. Топливный бак; 3. Рукоятка регулятора оборотов; 4. Дизельный двигатель; 5. Выключатель массы; 6. Система выпуска отработавших газов с глушителем выхлопа; 7. Радиатор; 8. АКБ; 9. Капот; 10. Пульт управления; 11. Муфта; 12. Самовсасывающий насос; 13. Затвор; 14. Грузовая проушина; 15. Манометр; 16. Мановакуумметр; 17. Рама. 18. Напорная магистраль; 19. Всасывающая магистраль; 20. Предпусковой подогреватель.
Рабочие характеристики насоса (агрегата) ДНА 100/57.НС2.4100.40/2350.K.11.6

Параметры приведены при частоте вращения вала дизеля 2350 об/мин.









