- Описание
- Характеристики
- Видео
- Документация
Условное обозначение
|
Иртыш |
ШУ2 |
1 |
. |
4 |
. |
0 |
. |
3 |
1 |
|
1 |
2 |
3 |
4 |
5 |
6 |
7 |
1 – Наименование серии шкафа управления;
2 – Назначение шкафа управления:
«ШУ2» – шкаф управления установкой повышения давления (регулирование по давлению).
3 – Количество управляемых электродвигателей, шт.;
4 – Мощность электродвигателя, кВт;
5 – Тип защиты электродвигателя:
«0» – Без защит.
6 – Питающее напряжение
«3» – 380В;
7 – Количество вводов;
Состав изделия
Шкаф управления состоит из:
1. корпуса, монтажной платы, крепёжных деталей;
2. панели оператора (контроллера) SMH4;
3. модуля FMR;
4. источника бесперебойного питания;
5. реле напряжения РНПП-311;
6. автоматических выключателей;
7. магнитных пускателей;
8. светосигнальной арматуры;
9. клеммных колодок;
10. системы проводов.
Сертификат соответствия
№ ТС RU C-RU.AУ05.B.06848Технические характеристики
|
№ |
Наименование |
Значение |
|
1 |
Род тока |
переменный, 50Гц |
|
2 |
Номинальное рабочее напряжение, В |
380 |
|
3 |
Номинальное напряжение изоляции, В |
660 |
|
4 |
Номинальное напряжение цепей управления, В |
220 |
|
5 |
Допустимое отклонение напряжения питания от номинала |
+10%…-15% |
|
6 |
Номинальный ток каждой цепи, А |
10 |
|
7 |
Номинальная мощность подключаемого электродвигателя, кВт |
4 |
|
8 |
Предельный отключаемый ток, кА |
100 |
|
9 |
Предельный коэффициент мощности (cosφ) |
0,89 |
|
10 |
Тип датчика температуры |
сопротивление |
|
11 |
Тип датчика влажности |
Датчик влажности СС06 |
|
12 |
Тип датчика давления |
4-20 мА |
|
13 |
Окружающая температура при работе |
(-5…+40) °С |
|
14 |
Окружающая температура при хранении |
(-25…+55) °С |
|
15 |
Относительная влажность воздуха |
80% без конденсата |
|
16 |
Максимальная высота над уровнем моря |
1000м |
|
17 |
Габариты шкафа управления |
см. Приложение 3 |
|
18 |
Степень защиты |
IP54 |
|
19 |
Меры защиты обслуживающего персонала |
Защита от прямого |
|
20 |
Степень загрязнения |
по соглашению |
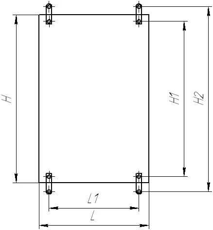
Общий вид шкафа управления и габаритные размеры
Внешний вид
Габаритные размеры|
Наименование |
H, мм |
L, мм |
B, мм |
|
Шкаф управления Иртыш ШУ2-1.4.0-31 |
800 |
600 |
250 |
Скачать руководство по эксплуатации









