- Описание
- Характеристики
Условное обозначение
|
Иртыш |
ШУ4 |
1 |
0,3 |
0 |
2 |
1 |
|
1 |
2 |
3 |
4 |
5 |
6 |
7 |
1 – Наименование серии шкафа управления;
2 – Назначение шкафа управления:«ШУ4» – шкаф управления электроприводом задвижки;
3 – Количество управляемых электродвигателей, шт.;
4 – Мощность электродвигателя, кВт;
5 – Тип защиты электродвигателя: «0» – без защиты;
6 – Питающее напряжение «2» – 220В;
7 – Количество вводов.
Состав изделия
Шкаф управления состоит из:
1. корпуса, монтажной платы, крепёжных деталей;
2. автоматического выключателя;
3. магнитных пускателей;
4. светосигнальной арматуры;
5. клеммных колодок;
6. системы проводов.
Сертификат соответствия
№ ТС RU C-RU.AУ05.B.06848Технические характеристики
|
№ |
Наименование |
Значение |
|
1 |
Род тока |
переменный, 50Гц |
|
2 |
Номинальное рабочее напряжение, В |
220 |
|
3 |
Номинальное напряжение цепей управления, В |
220 |
|
4 |
Допустимое отклонение напряжения питания от номинала |
+10%…-15% |
|
5 |
Номинальная мощность подключаемых электродвигателей, кВт |
0,3 |
|
6 |
Окружающая температура при работе |
(-5…+40) °С |
|
7 |
Окружающая температура при хранении |
(-25…+55) °С |
|
8 |
Относительная влажность воздуха |
80% без конденсата |
|
9 |
Максимальная высота над уровнем моря |
1000м |
|
10 |
Габариты шкафа управления |
см. Приложение 3 |
|
11 |
Степень защиты |
IP54 |
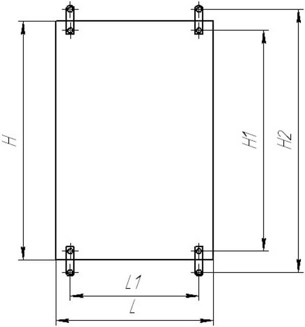
Общий вид шкафа управления и габаритные размеры


Габаритные размеры шкафов управления
|
Наименование Шкафа управления |
H, мм |
L, мм |
B, мм |
H1, мм |
H2, мм |
L1, мм |
|
ШУ4-1.0,3.0-21 |
395 |
310 |
220 |
345 |
- |
255 |
Скачать руководство по эксплуатации на шкаф управления Иртыш ШУ4-1.0,3.0-21 .pdf







